Let's Find a Home You'll Love
Start your custom search below to discover homes for sale that fit your exact needs — whether you’re looking in Northern Virginia, Washington DC, or Maryland suburbs. Use the filters to narrow by price, location, style, and must-have features like outdoor space or a home office.
You can save your search and come back to it anytime, or even share it with family and friends. The selection of homes for sale in the DC Metro Area includes a diverse array of neighborhoods and hidden gems — this is your personalized path to finding the right fit.
2550 KENSINGTON GARDENS 205ELLICOTT CITY, MD 21043




Mortgage Calculator
Monthly Payment (Est.)
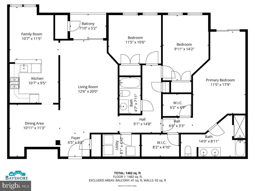
$1,825Popular 55+ Enclave at Ellicott Hills 2nd level, 3 bedroom condominium in a secure elevator building with private balcony overlooking the picturesque courtyard with fountain & offering generous one floor living! This one is tucked away at the very back of the community and has just been all freshened up with brand new flooring and all fresh paint so all you need to do is move in and start living the easy, carefree lifestyle that you deserve. Also, relax knowing that the heating and cooling system was replaced in 2019 and the water heater in 2024! This thoughtfully designed unit includes a primary suite with TWO walk-in closets and a large en suite bath + two other bedrooms situated together with a 2nd bath. The set up is perfect for overnight guests and use for a private office or quiet get away to read & unwind. The central living and dining areas are perfect for entertaining family and guests; the efficient kitchen includes an adjoining den great for television watching. Take a moment to chat & socialize with neighbors in the building lobby or beautifully landscaped courtyard complete with benches. Or gather at the amazing community clubhouse complete with large gym, meeting rooms, pool, & tennis. You will find true camaraderie & lasting relationships here in your new community!
2 hours ago | Status changed to Active | |
2 hours ago | Listing updated with changes from the MLS® | |
4 days ago | Listing first seen on site |

The real estate listing information is provided by Bright MLS is for the consumer's personal, non-commercial use and may not be used for any purpose other than to identify prospective properties consumer may be interested in purchasing. Any information relating to real estate for sale or lease referenced on this web site comes from the Internet Data Exchange (IDX) program of the Bright MLS. This web site references real estate listing(s) held by a brokerage firm other than the broker and/or agent who owns this web site. The accuracy of all information is deemed reliable but not guaranteed and should be personally verified through personal inspection by and/or with the appropriate professionals. Properties in listings may have been sold or may no longer be available. The data contained herein is copyrighted by Bright MLS and is protected by all applicable copyright laws. Any unauthorized collection or dissemination of this information is in violation of copyright laws and is strictly prohibited. Copyright © 2020 Bright MLS. All rights reserved.
Like What You See? Let’s Take the Next Step.
If any of these homes caught your eye, let’s talk. I can set up a private showing, answer questions about neighborhoods, or help you compare options based on your circumstances and goals.
Whether you’re just starting out or ready to make a move, I’m here to help you navigate the market with confidence. Reach out today and let’s make your home search count.
Didn’t find the right home among the current selection of homes for sale in the DC Metro Area?
Let’s Connect – I’ll help you find the home you’re looking for.
Did you know? You can invite friends and family to your search. They can join your search, rate and discuss listings with you.